Zadávací dokumentace

Zadávací řízení: Monitorovací systém II

Informace o dokumentu

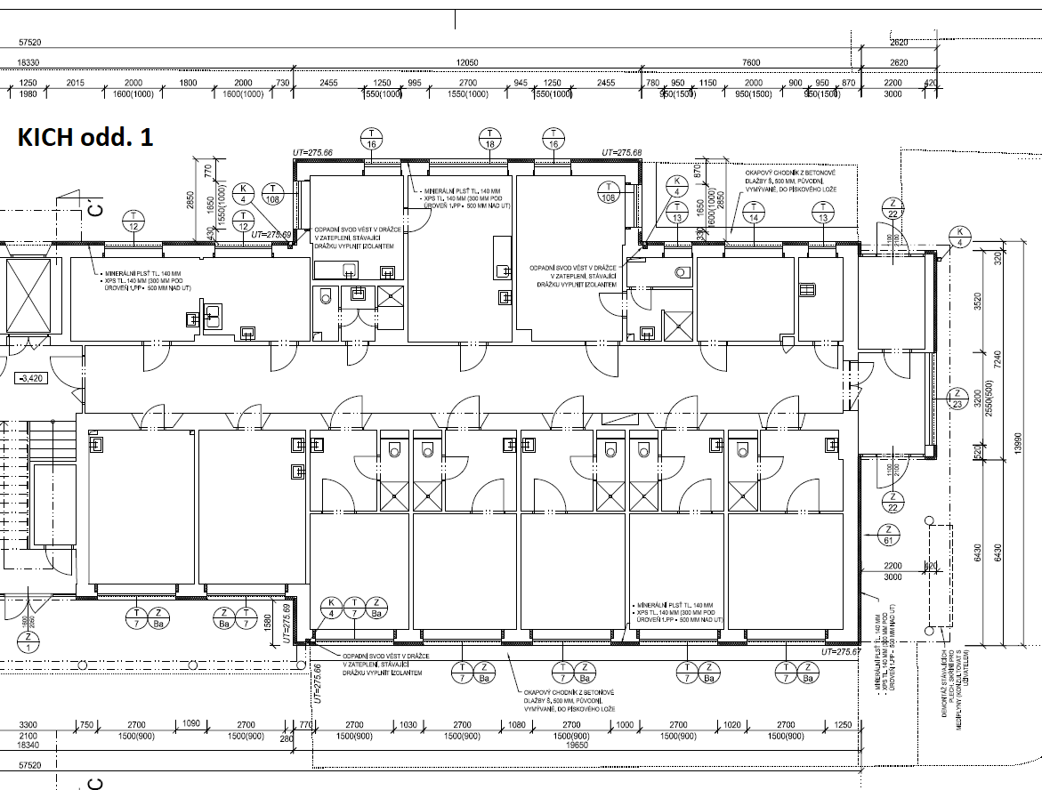
Název: Příloha č. 9 – Telemetrie – KICH odd. 1
Číslo jednací ve SpSl nepřiděleno/neuvedeno
ID ve SpSl nepřiděleno/neuvedeno
Popis:
Uveřejnění dokumentu na Profilu: 17.03.2023 12:04:51

Aktuální verze souboru

Jméno souboru: Obrázek PNG Příloha č. 9 – Telemetrie – KICH odd. 1.png
Velikost: 131,11 KiB
Aktuální verze souboru: 14.03.2023 15:13:33
Otisk MD5: 9cd75ffd630437f3bdbe7e03db99dbec
Otisk SHA256: d0acf36eec78f20ffc75735fbb1b88eb7b086ce85364098bb4619cb596e8db40

Historie souboru

Datum Název Popis Typ dokumentu Jméno souboru Velikost
V 14.03.2023 15:13:33 Příloha č. 9 – Telemetrie – KICH odd. 1 zadávací dokumentace - Příloha č. 9 – Telemetrie – KICH odd. 1.png 131,11 KiB